Cửa sổ mở quay nhôm PMA hệ Classic 58 - Đẳng cấp Châu Âu sang trọng

Nhôm kính Đại Phúc Cửa sổ mở quay nhôm PMA hệ Classic 58

Cửa sổ mở quay nhôm PMA hệ Classic 58

Giá bán
Liên hệ
Liên hệ

Cửa Sổ Mở Quay PMA Hệ Classic 58: Sản Phẩm Đẳng Cấp Châu Âu

1. Cửa Sổ Mở Quay PMA Hệ Classic 58 Là Gì?

Cửa sổ nhôm hệ rãnh C Châu Âu PMA Classic 58 là một trong những sản phẩm tiên tiến và hiện đại nhất hiện nay. Được thiết kế thông minh với hệ khuôn bao 58mm kết hợp cùng bản cánh thông qua hệ thống bản lề ma sát chữ A, sản phẩm này mang đến sự chắc chắn và êm ái trong quá trình đóng mở. Hệ thống gioăng trung gian và gioăng rãnh C giúp cửa kín khít, cách âm tuyệt đối, tạo nên không gian sống yên tĩnh và thoải mái.

2. Đặc Điểm Của Cửa Sổ Mở Quay PMA Hệ Classic 58

Cửa sổ mở quay PMA hệ Classic 58 có thiết kế linh hoạt với 1, 2, 3 hoặc 4 cánh, phù hợp với mọi không gian kiến trúc. Sản phẩm có thể được lắp đặt bản lề mở quay hoặc bản lề ma sát mở lật và mở quay góc 90 độ để tối đa hóa không gian sử dụng.

  • Nhôm Hệ Rãnh C Châu Âu PMA Classic 58: Được thiết kế dễ dàng thi công, tối ưu thời gian lắp đặt, đặc biệt phần lắp đặt bản lề và tay cài rất đơn giản.
  • Tính Thẩm Mỹ: Bề mặt được sơn tĩnh điện cao cấp AkzoNobel, bảo hành lên đến 15 năm, với nhiều màu sắc thời thượng như vân gỗ, cafe, đen, xám đá, đáp ứng mọi nhu cầu thẩm mỹ của khách hàng.

3. Ưu Điểm Của Cửa Sổ Mở Quay PMA Hệ Classic 58

3.1. Khả Năng Cách Nhiệt, Cách Âm Tốt

Cửa sổ mở quay PMA hệ Classic 58 có khả năng cách nhiệt và cách âm xuất sắc nhờ vào thiết kế nhôm hệ rãnh C và gioăng trung gian. Sản phẩm này giảm khoan, khoét, không phá vỡ kết cấu nhôm, đảm bảo độ chắc chắn và tuổi thọ cao.

3.2. Tính Thẩm Mỹ Cao

Bề mặt cửa sổ được sơn tĩnh điện cao cấp, giúp bảo vệ cửa dưới các tác nhân bên ngoài và dễ dàng vệ sinh. Với nhiều gam màu thời thượng, cửa sổ PMA Classic 58 không chỉ bền bỉ mà còn mang lại vẻ đẹp sang trọng cho công trình.

3.3. Tiết Kiệm Chi Phí

Thiết kế hiện đại theo tiêu chuẩn châu Âu giúp tối ưu vật liệu nhôm, đảm bảo độ bền và khả năng đón sáng tốt, giúp giảm chi phí điện năng đáng kể. Cửa nhôm PMA hệ Classic 58 luôn giữ được màu sắc và kết cấu bền vững, ngay cả trong điều kiện thời tiết khắc nghiệt.

Cửa sổ mở quay PMA hệ Classic 58 không chỉ là một sản phẩm chất lượng cao với nhiều ưu điểm vượt trội mà còn là lựa chọn hoàn hảo cho những ai muốn nâng tầm không gian sống với thiết kế sang trọng và hiện đại. Hãy trải nghiệm ngay sự khác biệt với cửa sổ nhôm PMA Classic 58 để cảm nhận sự tiện nghi và thẩm mỹ tuyệt vời mà sản phẩm này mang lại.

Thông số kỹ thuật cửa sổ nhôm PMA hệ Classic 58

Mặt cắt cửa sổ nhôm PMA hệ Classic 58
Mặt cắt cửa sổ nhôm PMA hệ Classic 58

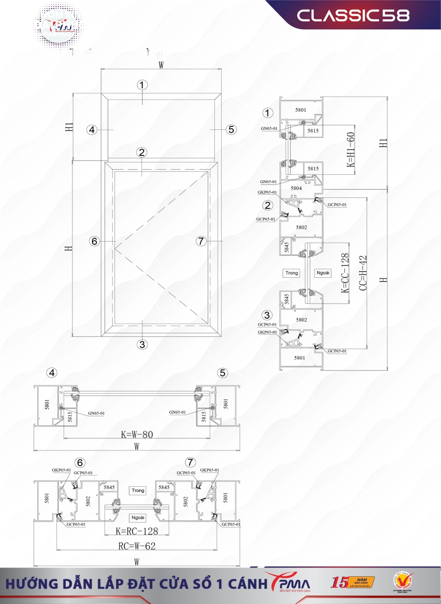
Hướng dẫn lắp đặt cửa sổ mở quay 1 cánh nhôm PMA Classic 58

Hướng dẫn lắp đặt cửa sổ mở quay 1 cánh nhôm PMA Classic 58
Hướng dẫn lắp đặt cửa sổ mở quay 1 cánh nhôm PMA Classic 58
Thông tin liên hệ:
Công Ty TNHH Nhôm Kính Đại Phúc